Location Pods
Affordable luxury pods that offer a space to live, work, or play! Influenced by nature and built to enhance your lifestyle.
These 29sqm Location Pods provide a cost-effective way to create a permanent home, a weekend cabin, a guest house, or office in the backyard. With the ability to move the entire pod to a separate location and utilise it for a different purpose later on is a benefit of a prefabricated and transportable home.
Constructed entirely at our facility in Taranaki and delivered to the customer complete and ready to move in. Customers can choose their selections in just a few clicks online.

Pods are ideal for
- Small home living
- Art studio
- Yoga studio / Gym
- Airbnb
- Office space
- Guest accomodation
- Holiday bach
- Glamping accomodation
- Extension to your home
Why choose a Location Pod?
Affordable luxury
The Pods' architectural design incorporates high-quality building materials and thoughtfully chosen design elements to provide a luxurious experience at a more reasonable cost. The design more than makes up for its size with comfort and style. The availability of advanced technologies also improves the overall experience, ensuring a contemporary, luxurious way of living.
Practical layout and functionality
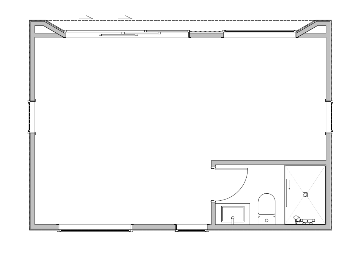
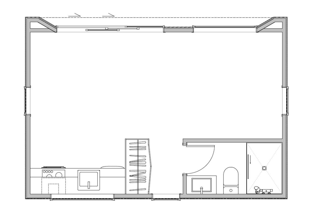
Designed to maximise indoor-outdoor living and views of the surrounding landscape. The kitchen is located parallel to the living area, and although cosy in size, is well-equipped with plenty of storage. The floor-to-ceiling windows allow you to feel more connected to the outdoors and the surrounding environment. The bathroom is tucked behind the open-concept bedroom area for more privacy.
Easy maintenance
Constructed using building materials that require little upkeep and make life simpler. Long-term savings are made possible by the use of high-quality and durable materials which require little maintenance and allow you to spend more time outdoors or inside relaxing.
In touch with nature
Because of their versatility, our Pods can be installed in a range of rural or urban locations. The natural wood interior finish blends seamlessly with the surrounding landscape, allowing the outdoors to come in through our floor-to-ceiling sliding doors, allowing you to feel reconnected with nature.
Built off-site
We can deliver a finished product on time and on budget thanks to off-site construction. Our Pods are constructed in a controlled facility, which ensures quality control and eliminates delays, as well as reducing waste of both resources and time. The Pods can then be delivered to your site and installed in a fraction of the time of conventional construction.
High-quality materials and build standards
Our pods are built and braced to extra high wind zone ratings, so are suitable for any region in New Zealand. Further to this, our Pods are designed to the new H1 standards with Low-E glass and high R-value insulation. Our cladding and linings are pre-finished, durable and tough for delivery and have manufacturer warranties. All of our fixings and fittings are high-quality with proven performance.
Floorplan options
Shell only
Shell + Bathroom
Shell + Bathroom + Kitchen
Our process
Build your pod
This can be done by using our online pod builder and offers real time pricing. Here you can select your floorplan, colour selections and add ons. A quote will then be pre-populated and you can request a final quote. You can reach out to our consultation team at anytime to discuss your selections.
Our process
Feasibility assessment
Once we receive your submission, our consultant will assess your site's access as well as surrounding roads from our factory to your location for delivery purposes. They will also ensure that your site is large enough to accommodate a Location Pod and explain any council consent requirements your Pod may require. If you live in a rural area, they will inform you of optional extras such as a septic tank or water supply.
The cost for a feasibility assessment is $1,000, if you sign a contract to build a Location Pod, this will be taken off your final quote. We will also explain the site preparation that will need to be completed before the Pod arrives at your site.
Our process
Final Selections and pricing confirmation
Depending on the results of the feasibility assessment we will inform you of any additional costs that could occur due to site specific requirements. We will confirm your final design selections and offer the opportunity to make any changes before moving to the construction stage of the Pod. Once you complete this stage, additional changes down the line can create additional costs.
From here your construction contract is issued, a building slot is booked in and a 10% deposit is due.
Our process
Site specific design and consents submissions completed
During this time, we will discuss the building consent requirements for your location and provide relevant information needed for you to submit with your council. Our designers will manage the design and specification process and generate site specific consented plans. A 10% progress payment is made at this time.
Our process
Building starts
Following the submission of the consent request, construction begins in our Taranaki-based factory. This will take around 12 – 16 weeks to complete. A 40% progress payment is made at this time.
Our process
Delivered
Once construction is complete and your site foundations are ready, we will load the Pod onto a delivery truck and transport to your site. Once site connections have been made your Pod is ready to enjoy! Final 40% progress payment due before delivery.
Learn more
Frequently Asked Questions
Do I need Building Consent or Resource Consent?
Our pods are consented ex-warehouse. The pods will need an ‘onsite’ building consent for screw piles, septic system and stormwater and is unique to each region which we will help with.
Resource Consent is unique to each region and will have to be checked with the local body council for proximity to waterways, land zoning etc, but since the pods are under 30m2 typically no resource consent is required in urban settings.
Is there a 2-bedroom option?
Not yet, but we are planning on launching a 2-bedroom option in the near future. If you’re interested in learning more feel free to contact us for more information.
Is there a finance option?
We have an ongoing relationship with BNZ and would be happy to put you in touch with our account manager to discuss financing your Location Pod.
Where do you deliver to?
We currently deliver to the North Island of New Zealand and transport costs are available on request. If you are wanting a Location Pod delivered to the South Island or to the Pacific Islands we can provide you with transport costs.
Do prices include delivery?
Transport costs are additional and vary depending on your location. Transport cost is supplied on request.
Do you have a show home?
We do not have a show home at this stage.
How much does a Location Pod cost?
Location Pods start from $114,990. Use our Location Pod builder for a custom detailed quote.
My site has difficult access, can the Pods be built on-site?
No, our Pods are transportable and must be built off site. If you’re concerned about your site's access, you can contact our team to discuss your site or concerns further (see process chart).
How customisable is a Location Pod?
Customisable options are available. Talk to our team to discuss further.
What is the typical insulation rating?
R2.8 walls, R7 ceilings, floor R2.8 expol
Can we visit during the construction stage?
No, visiting our site is not possible. However, we will send you regular updates with images so you can keep track of the process and quality of your Pod.
What sort of Guarantees do you provide?
Location Pods offer a 10-year Master Builders Guarantee on all new Pods. This includes a quality guarantee and guarantee on your deposit. All manufacturers also offer their warranties which differ depending on which one it is.
You will need to source your own builder to complete the decking. Depending on your location, we can recommend local builders.
-1%201%20(1).webp?width=544&height=281&name=Style%20Guide%20Download%20CTA%20(1000%20%C3%97%20600%20px)-1%201%20(1).webp)
Want more info?